DISCOVERY of DESIGN <3:무한의 미니멀리즘>

Suetomi AOQ Cafe Stand / G architects studio + Ryohei Tanaka / 2022 / 10㎡
이번에 소개해 드릴 상업공간 인테리어는 사진에 보이는 저 말도 안되게 좁은 작은 커피가게입니다. 팝업매장이라고 보시면 될것 같지만 놀랍게도 상시운영하고 있습니다. 교토시 카라스마거리에 위치하고 있는데요 교토의 유명제과점 SUETOMI에서 런칭한 커피전문브랜드입니다. 바로 옆 걸어서 1분거리에 SUETOMI본점이 있어요. 참고로 SUETOMI는 1893년에 창업한 일본전통과자점(和菓子:화과자) 입니다. 역사가 깊고 유명한 가게로 상당한 자부심이 있다고 하네요. 일본의 유서깊은 전통기업에 대해서도 참 이야기가 많지만 우리는 실내건축이야기가 주제이니 일본 전통기업의 디자인 관련 이야기들은 다음에 한 번 정리해서 포스팅 할게요.




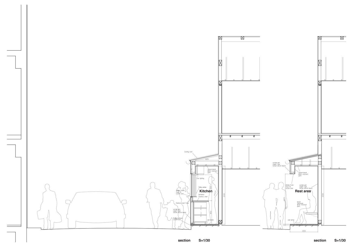
정말 작은데도 불구하고 군더더기 없이 간결하게 정돈된 외관이 인상적입니다. 의뢰인은 점포의 내부적인 컨디션보다는 위치에 주안점을 둔것 같습니다. 저기가 카라스마거리에 있는 메인 사거리인데 주변에 호텔과 큰 상업빌딩이 많이 있습니다. 1000mm도 안되는 공간의 깊이를 보고도 G architects studio와 Ryohei Tanaka는 곧바로 floor plan이 떠 올랐다고 해요, 대기공간과 주방을 양옆으로 배치하여 거리에서 봤을때 매장 정면의 시인성을 높이는데 주안점을 두었습니다.


고재(古材)느낌으로 어둡게 염색된 원목판재를 메인 입면소재로 사용하고 자연스럽게 스며든 녹청색을 배치하여 시선을 집중시킵니다. 디자인적인 측면도 있는데 실제로는 교토시 산하 해당 지자체에서 건축물에 대한 미관심의가 있는데 소재와 색상에 관한 규정 중에 자연소재를 활용하는 소재를 충족시켜야 한다고 하는 내용이 있다고 해요. 규정도 충족시키면서 심미적인 요소를 극대화하는 장치를 무엇으로 할것인지 엄청 고민했다고 합니다.

그래서 이게 그냥 방식으로 구현한 것이 아니라고합니다. 우선 시그니처 컬러는 블루로 정했는데요, 130년의 역사를 가진 본점 SUETOMI의 연륜을 표현하고자 했답니다. 근데 저 컬러 톤 만든다고 엄청 고생했다고 해요. 구리호일을 목재벽면에 부착하고 그걸 촉매제로 산화시켜서 제거하는 방식으로 구현했다는데요, 와 내가 듣고도 두 귀를 의심했는데 그 촉매제가 엄청 진한 간장이었다고... 여튼 천연소재를 활용하는 방식으로 하겠다고 계획도서를 관청에 제출하고 미관심의를 통과하였다고 합니다.


구리는 산화되면 녹청색을 냅니다. 아 그걸 또 다 닦아내고 다시 또 붙이고 산화시키고 또 닦아내고 몇번은 한 것 같아요. 말이 쉽지 그야말로 노가다...참고로 화학물감이 없던 시절에는 구리를 갈고 산화시킨 녹청색의 염료를 사용했다고는 합니다. 벽에 그림을 그릴때 쓰는 안료로 썻다고 하네요.




아기자기한 기교를 어지럽게 넣기보다는 시그니처 컬러와 광원만으로 디자인의 시작점과 도착점을 연결하였습니다. 이런게 정말 잘 만든 디자인입니다.


확실히 엄청난 공을 들인 보람이 있는것 같아요. 그냥 페인트로 구현하였다면 세월의 흔적을 구현하는것이 이렇게 자연스럽게 나오지는 않았을 겁니다. 인위적으로 녹을 피워서 녹청색을 표현한 공법은 정말 독특하기도 하고 탁월한 선택이었다고 생각합니다.

적갈색의 고풍스러운 목재와 녹청색이 그라데이션으로 잘 표현되어 측면 마감되었습니다. 보통 가뜩이나 좁은 측면에 마땅히 할게 없으면 가게의 시그니처로고나 사인물을 부착할 유혹에 빠지는데 용캐도 잘 이겨내고 저런 깔끔하고 심플한 마감을 적용해서 그 안목에 놀랐습니다. 역시 디자인에는 과감한 판단이 필요해요.



도면을 보면서 참 이런 입지환경에서도 크리에이티브들은 좌절하거나 꺽이지 않아야 하구나 하며 반성하게 되었습니다. 정말 버릴게 없는 공간계획에 더 넣을것이 없을 만큼 굉장히 정교하고 짜임새 있는 플랜이 정말 인상적입니다. 이 좁은 가게에 이렇게 이야기거리가 많다는 것도 참 재미있었습니다.
예상견적은 2천~2천5백만원
건축회사가 공개한 도면과 내부 사진 그리고 마감 소재들을 바탕으로 유사한 스타일과 퀄리티로 부산에서 구현한다면 최소 약 2천~2천5백만원 정도의 견적이 예상됩니다. 물론 똑같이 만들기보다는 해당 작품에 영감을 받아서 고객님의 환경에 맞게 재구성할것입니다.
만약 부산이라면 해운대 해리단길처럼 새로이 각광받는 핫플레이스도 좋을 것 같고 남포동이나 전포동 공구상가 같은 좁은데 꽉꽉 가게들이 들어찬 거리에 작은 모퉁이에도 좋을 것 같습니다. 애매하게 있는 건물옆 모퉁이 옷수선집 하던 자리나 작은 열쇠방 하던 그러 자리도 나쁘지 않습니다.
국내환경에서도 충분히 구현이 가능한 해외의 우수한 인테리어 사례들. 베이직 인테리어는 우수한 사례가 될만한 해외의 우수한 인테리어 디자인 컨셉과 시공사례들을 계속 소개해 드리고자 합니다. 그리고 국내 실정에 맞게 적용한 인테리어 시공 상담도 받고 있습니다.




'인테리어디자인(interior design) > 상업 공간 디자인' 카테고리의 다른 글
Voice of Coffee / Yusuke Seki (3) | 2023.08.17 |
---|---|
RAMA Restaurant / MMA (4) | 2023.08.14 |
Hoo. Café / Koyori (0) | 2023.08.11 |
Cucina Italiana Komatsu Restaurant (0) | 2023.08.10 |
70's INTERIOR DESIGN - BUDAFEST 1 (0) | 2023.02.23 |